Früher, als kleiner Junge träumte ich von großen Autos - Lastwagen - weil ich mit den Modellen davon schon als kleiner Junge interessante Spiele spielen konnte. Als ich dann meinen Führerschein hatte, habe ich mich bemüht immer ans Steuer der bis zu 7.49t schweren LKWs zu kommen, ich fand es klasse so ein großen Ding 'beherrschen' zu können.
Dann lernte ich Menschen kennen die selbst mit einem Opel Bedford durch die Welt
getourt sind, und wiederum andere die sich einen 809 zum Leben aubauen wollten.
Da ich schon immer einen Hang dazu hatte auch die Einsamkeit zu genießen und
ich andererseits heftig in der Problematik Einordnung in die Gesellschaft <
- > Freiheit stand, träumte ich von einem unabhängigen Leben, weitab von den
Zwängen der normalen Welt - in einem kleinen oder größeren Wohnmobil.
Aber: Ich konnte mir zu der Zeit kein Wohnmobil leisten. ;-)
(Das war so Mitte der 80er...)
Damals war auch für mich das Automobil ein Sinnbild für Freiheit.
Jetzt hat es sich eher ins Gegenteil verkehrt und Automobil steht mehr für 'Aufwand'
und 'Balast'. Aber an anderer Stelle gibt es dazu vieleicht mal mehr.
Den Traum träumte ich intensiv, und die Erfüllung lag so fern...
...bis die Notwendigkeiten der Realität mir die Erfüllung des Traumes nahelegten:
1993 entschlossen meine damalige Freundin Ilka Veit und ich in Weimar an der Hochschule
für Architektur und Bauwesen, jetzt
Bauhaus Universität, Bauingenieurwesen zu studieren. Unsere Suche nach bezahlbarem
Wohnraum war nicht von Erfolg gekrönt.
Wegen unseres wohlerzogenen schwarzen Hundes Tina fanden wir auch über das Studentenwerk
Weimar keine Unterkunft. Ilka kam auf die Idee im Wohnmobil zu wohnen. Ich war
begeistert und wollte das dann natürlich auch.
Wir packten unsere sieben Sachen und kamen am 8.Oktober 1993 mit dem Wohnmobil in Weimar an und schrieben uns eine Stunde vor Schluß zum Studium ein. Die erste Zeit wohnten wir auf dem Stadionvorplatz, ein größerer öffentlicher Parkplatz, de auch Rummel und Zirkusse für Festivitäten nutzen. Ich stellte uns beim Ordnungsamt vor und es wurde uns erlaubt dort zu stehen. Auf weitere Fragen erhielten wir Strom und durften unsere Abwässer in die Kanalisation entsorgen. Trotzdem suchten wir einen angenehmeren Stellplatz.
Anfang 1994 wurden wir dann doch vom Ordnungsamt aufgefordert, den Stadionvorplatz zu verlassen. Es ist nach geltendem Recht, insbesondere der STVO und nach einigen Gerichtsurteilen, nicht zulässig ist regelmäßig an der gleichen Stelle zu parken und auf öffentlichen Plätzen in Mobilheimen zu wohnen da dies ein unzulässiger Gemeingebrauch sei.
Nach einigen Kontakten mit dem Kanzleramt der Hochschule ergab sich die Möglichkeit
das wir in unserem Wohnmobil auf dem damals leerstehenden Gelände der alten Feuerwache
in Kromsdof wohnen durften. Wir wahren begeistert und zogen dort hin.
Strom stand uns zur Verfügung, die Entsorgung der Abwässer war geregelt und einen Wasseranschluß konnten wir auch nutzen. Ruhig war es dort, Tina bewachte das Gelände, wir duschten mit kalten Wasser aus einem 1'' Wasserschlauch im Sommer wie im Winter und konnten uns unserem Studium widmen.
Trotz des Hin und Her zwischen Hochschule, Studentenwerk und dem Land Thüringen über die Nutzung des Geländes fanden wir immer eine Regelung dort bleiben zu dürfen, die insbesondere vom Kanzler der Hochschule und seine MitarbeiterInnen initiert und mitgetragen wurde.
1996 begannen sich andere Studenten für das Gelände zu interessieren und hielten sich desöfteren dort auf. Aus Ihnen bildete sich der KWVreiraum der das Wohnhaus mitsanierte und es jetzt bewohnt. [Der Bogen, 1996]
Ende 1996 wurde auch das Reihenhaus auf dem Nachbargrundstück fertiggestellt.
Damit war die Idylle und die Ruhe vorbei. Meine Freundin zog aus, ich wohnte
noch bis Mitte 1998 dort. Dann bekam ich eine Nutzungsuntersagung durch die zuständige
untere Bauaufsicht, weil die rechtsgelehrte Nachbarin sich über die nichtvorliegende
baurechtliche Genehmigung der Dauerwohnnutzung des Wohnmobils nachdrücklich einmal
wöchentlich (seit Mitte 1996) beschwert hat.
BTW: Einer der Aussichtsreichsten Versuche die sie unternommen hat um auf das Gelände und die Nutzung Einfluß zu nehmen.
Das Blaue Haus blieb stehen, Studentenwerk und Land waren nicht gerade glücklich darüber, ich begann etwas zu renovieren und stellte Anfang 1999 einen Antrag zur Genehmigung einer Dauerwohnutzung über 1,5 Jahre.
Im März 2000 wurde der Antrag zur Genehmigung der Wohnnutzung auf dem Gelände der Alten Feuerwache abgelehnt.
[...] Das Umweltamt wurde am Genehmigungsverfahren beteiligt und stimmt der Aufstellung des Wohnmobils zu.
Die Gemeinde Kromsdorf hat [...] nicht zugestimmt.
[...] Nach "Bauordnung im Bild" ist ein Wohnwagen eine mobile Unterkunft mit Zweckbestimmung Ferienaufenthalt und Aufstellung auf einem Campingplatz.
Im vorliegenden Fall soll der Wohnwagen überwiegend ortsfest genutzt werden. Er ist somit nach § 1 Abs. 1 Thüringer Bauordnung (ThürBO) als bauliche Anlage zu behandeln, die der Baugenehmigung nach § 62 Abs. 1 ThürBO bedarf.
Mit der Aufstellung des Wohnmobils ist eine Wohnnutzung für ca. 1,5 Jahre beantragt.Unter Wohnen versteht man eine auf Dauer angelegte Häuslichkeit, welche die Gesamtheit der mit der Führung des häuslichen Lebens verbundenen Tätigkeiten umfaßt. Dafür sind bauliche Anlagen notwendig (als solche ist auch das Wohnmobil zu sehen, die zum dauernden Wohnen geeignet sind und für die dauernde Wohnnutzung die Voraussetzung bieten.
Die von der Thüringer Bauordnung geforderten Mindestanforderungen an Aufenthaltsräume (§§ 45 bis 48 ThürBO) werden nicht erfüllt (z.B. Grundfläche und Raumhöhe), so daß der Wohnwagen als "Wohnmobil" nur für zeitweise Nutzung geeignet ist. Er ist nicht für dauernde Wohnzwecke geeignet, worauf der für die geplante Nutzung angegebene Zeitraum aber schließen läßt.
Das umliegenden Gebiet ist durch die Gemeinde als im Zusammenhang bebaute Ortslage, d.h. Innenbereich eingestuft. Das Vorhaben muß sich einfügen. Entscheidend dafür ist auch der Gebietscharakter. In einem reinen und allgemeinen Wohngebiet ist die Aufstellung eines Wohnmobils mit der besonderen Zweckbestimmung der Baugebiete nach der Baunutzungsverordnung (BauNVO) nicht zu vereinbaren; in Misch-, Dorf-, Gewerbe- und Industriegebieten ist die Aufstellung der Vielfältigkeit der dort vorhandenen Gebäude und baulichen Anlagen in der Regel möglich. Hiebei geht es jedoch lediglich um das Abstellen des Wohnwagens, nicht um dessen Nutzung (Abstellen i. S. von Unterbringen des Wohnwagens für die Zeit, in der er nicht für Ferienzwecke genutzt wird). Daher ist dies für die Beurteilung des Vorhabens nicht in erster Linie von Bedeutung, da hier eine ortsfeste Nutzung auf Dauer geplant ist.
Es ist festzustellen, daß das Wohnmobil nicht den Anforderungen für eine Dauerwohnnutzung genügt.
Als bauliche Anlagen sind Wohnwagen zudem in keinem Katalog de Baugebietskategorien der BauNVO (§§ 2 bis 9 BauNVO) vorgesehen. Lediglich auf einem ausgewiesenen und genehmigten Campingplatz sind sie für eine Nutzung für Ferienzwecke zulässig und bedürfen nicht der Genehmigung.
[...]
Mir fielen gleich noch weiterführende Fragen ein, die ich dann schriftlich stellte und auch bald beantwortet bekam:
Grundsätzlich wird über die Zulässigkeit von Vorhaben nach §§ 31, 33 bis 35 BauGB im bauaufsichtlichen Verfahren von de Bauaufsichtsbehörde im Einvernehmen mit der Gemeinde entschieden. Gemäß § 36 Abs. 2 Satz 1 BauGB kann die Gemeinde aus den sich aus §§ 31,33,34 und 35 BauGB ergebenden Gründen versagen. Die Gemeinde Kromsdorf hat in Verbindung mit § 34 BauGB sowohl aus baulicher als auch sanitärer und brandschutztechnischer Hinsicht dem Vorhaben nicht zugestimmt.
Das Grundstück kann entsprechend § 5 BauNVO einem Dorfgebiet zugeordnet werden.[...]
Eine Vermutung wollte ich dann noch bestätigt haben, aber wie es so ist, gab es eine eher ausweichende Antwort:
Das Aufstellen von Zelten sollte auf dafür vorgesehenen Flächen, wie zum Beispiel einem Campingplatz, erfolgen. Zelte sind für eine dauerhafte Wohnnutzung ungeeignet. Zudem sind sie in keinem Katalog der Baugebietskategorien der BauNVO (§§ 2 bis 9 BaiNVO) vorgesehen. [...]
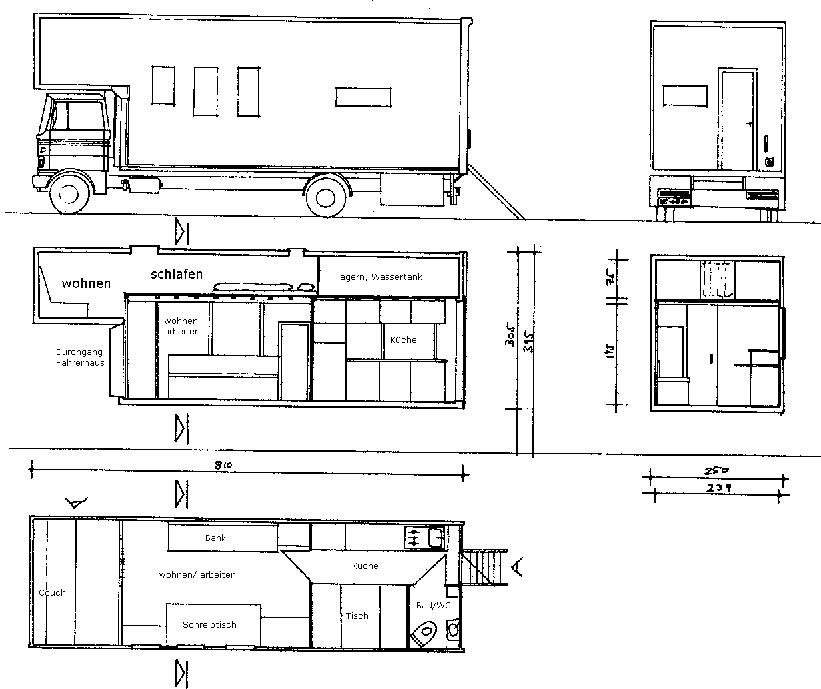
Es war ein Mercedes Benz 813, Baujahr 1977 mit einem riesigen Möbelkofferaufbau.
Klo und Abwassertank waren an Bord. Der Möbelkoffer war so isoliert, daß es auch
bei -15°C Aussentemperatur zum Wohnen ausreichte. Als Heizung standen ein Ölradiator
und eine Diesel-Umluft-Standheizung zur Verfügung.
Bis 1995 nutzten wir das Blaue Haus auch als Skihütte, für Reisen und für Heimfahrten nach Bremerhaven.
Zu zweit mit Hund war es zuweilen doch etwas eng, aber für mich allein war genügend Platz zum Leben. Auf der oberen Ebene befand sich der Schlafbereich, im Alkoven das Wohnzimmer und im unteren Bereich Wohn- und Arbeitsraum sowie Küchen und Klo.
In den wärmeren Zeiten verlagerten wir viel von unserem Leben nach draussen, schliefen auf Luftmatratzen unter einer großen Plane studierten, grillten und genossen die Naturnähe.
Das blaue Haus stand ein Jahr zum Verkauf, zum Schluß hätte ich es verschenk, doch:
Es wollte keiner.
Ich habe noch eine paar Sachen ausgebaut, verteilt, verschenkt und den Rest
kostenpflichtig entsorgt.
Es war eine schöne Zeit mit dem blauen Haus auf dem grundstück der alten Feuerwache in Kromsdorf.
Ervin Peters, 08. Juli 2001
P.S. Wer mehr wissen möchte, kann mir gern mails senden.